
聯系人:趙經理
手 機:18915198233
電 話:0517-86985588
地 址:江蘇省金湖縣戴樓工業集中區
金屬管浮子流量計是工業自動化過程控制中常用的一種面積流量測量儀表。它具有體積小,檢測范圍大,使用方便等特點。它可用來測量液體、氣體以及蒸汽的流量,特別適宜低流速小流量的介質流量測量。
流量計主要有三大部分組成:1.測量管體;2.錐形浮子;3.指示器。
浮子的位移量與流量大小成正比,通過磁耦合系統,以不接觸方式,將浮子位移量傳給指示器指出流量大小。也可配合不同的轉換器,將流量值轉換成標準的電遠傳信號如4-20mA。實現距離遠傳顯示、記錄、積算和控制等功能。具有獨特的雙指示系統,雙行液晶數字顯示,耐高溫高壓。
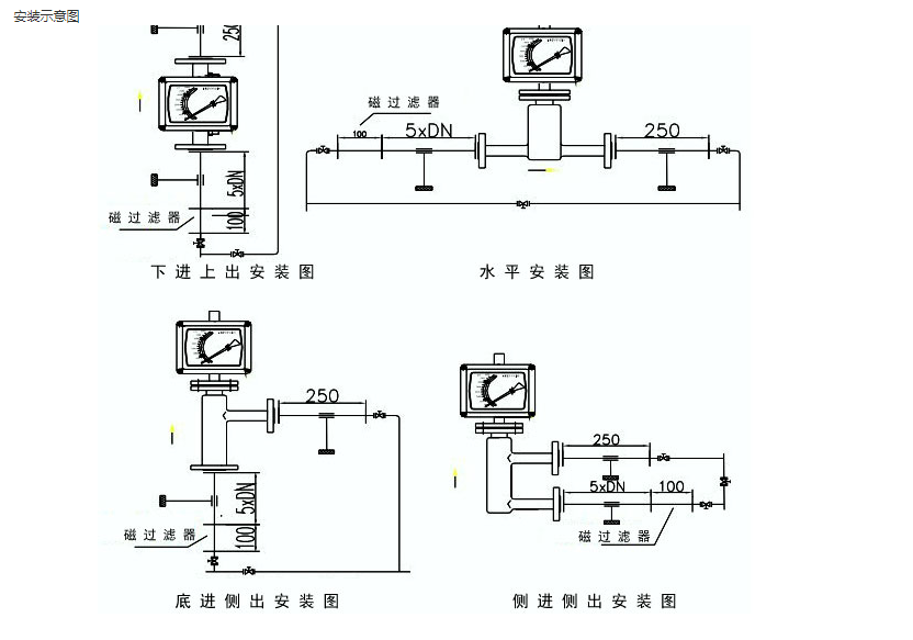
一、金屬管浮子流量計的安裝注意事項:
1.金屬管浮子流量計安裝到工藝管道之前,工藝管道應該吹掃,將管道內的焊渣清洗干凈,防止管道中雜質堵塞儀表,影響正常使用。
2.為了保證測量精度,推薦在流量計上游安裝5DN的入口直管段,下游安裝250mm出口直管段。
3.金屬管浮子流量計有垂直安裝和水平安裝形式,如果是垂直安裝形式,安裝垂直度應該保證優于1%,如果是水平安裝形式,安裝水平度都應該保證優于1%。
4.若介質中含有固體雜質,應在閥門和直管段間加裝過濾器;若介質中含有鐵磁物質,應在金屬管浮子流量計的上游安裝磁過濾器。
5.由于金屬管浮子流量計安裝了一個磁遠傳系統,要確保周圍其他設備產生的磁場不影響測量結果。
6.若被測介質為大的脈動流或兩相流,應在流量計的上游安裝緩沖器來消除或減弱脈動,保證介質的流動是單相穩定的,同時,建議流量計zui好使用阻尼型的。
7.測量氣體的流量計,是在特殊壓力下的校準,如果氣體在流量計的出口直接排放到大氣,將會在浮子處產生較大的壓力損失,引起數據失真,如果這樣的工況條件,應該在流量計的出口安裝一個閥門,以便對所需流量值進行設定。當浮子上方維持標校壓力時,氣體將在閥門處膨脹。
8.為便于清洗和維護,保證正常運行,建議設旁通管路。
9.安裝管路的軸線須與流量計同軸,并適當地支撐管道以避免振動和減小流量計所受應力,測量系統控閥應安裝在流量計下游。
10.安裝內襯聚四氟乙烯的金屬管浮子流量計時,緊固法蘭螺栓時應對稱緊固且勿過緊,以防四氟變形。
二、金屬管浮子流量計的維護注意事項:
1.金屬管浮子流量計屬于設備,所以在運輸、安裝、儲存、和使用過程中,須輕拿輕放,杜絕野蠻運輸,過應力安裝,隨地亂放現象。一定要保證指示器和傳感器的相對位置不能改變,一旦相對位置發生改變,會直接影響儀表的測量精度。
2.金屬管浮子流量計通常不需進行維修。但在長期使用過程中,管道不可避免要有鐵磁性物質吸附在浮子上,如果雜質過多,會將浮子卡死或影響測量精度,所以要對流量計的傳感器進行清洗。如果在流量計的入口處裝有磁過濾器,也要對磁過濾器定期清洗。清洗時須將流量計或過濾器從管道上卸下來。
3.對電遠傳及帶報警限位開關的流量計在使用前,打開儀表蓋,按說明書正確接線。對于報警型的旋松限位開關處的螺絲,用戶根據需要設定限位報警位置,并旋緊螺絲,復原后使用。
4.用于氣體測量時,應保證管道壓力不小于5倍儀表壓力損失,以確保浮子工作穩定。一般測量氣體的儀表配有氣體阻尼器,以zui大限度減小浮子震蕩。為進一步確保浮子的穩定性,可以在流量計的出口安裝一個節流閥或適當的孔板。
5.金屬管浮子流量計使用時應緩慢開啟和關閉閥門,以免儀表損壞。若開啟流量計時,由于管道內沒有壓力或系統還未達到儀表正常使用的工作壓力,須緩慢開啟控制閥,直到系統正常,儀表方可使用,否則容易造成指針跳動或浮子的突然撞擊而損壞的現象。
6.用戶使用時,若被測流體的密度與水不同時,或被測氣體的參數和工作狀態與制造廠家規定不同時應對流量計示值讀數進行換算,換算方法見修正。
Copyright ? 2022-2024 江蘇飛翔儀表有限公司 All Rights Reserved. 蘇ICP備2021035707號-1 XML地圖
技術支持:飛翔儀表